IBAU均化庫
丁寶勤 13906276368(技術)
電話:0513-88400999 傳真:0513-88400998 郵箱:jszk@vip.163.com

一、產品 概述
IBAU庫采用德國漢堡公司的連續均化技術。在外部帶一攪拌倉,庫底中心設一大圓錐,庫內生料的重量通過該錐傳遞給庫壁,庫底環形空間被分成向中心傾斜10度的6個充氣區,每區裝多種規格的充氣箱。充氣卸料時生料被送至一條徑向布置的充氣箱上,再經過錐體下部的出料口由空氣斜槽送入庫底中央攪拌倉中。卸料時,生料在自上而下的流動過程中,切割水平料層而產生重力混合作用,進入攪拌倉后又連續充氣攪拌而得到進一步均化,均化效果H可達6~8,電耗0.1~0.2kwh/t生料。
二、 技術參數表
序號(No.) | 設備名稱(Equipment Name) | 規格型號(Specification) | 數量 (Quantity) | 備注(Remarks) |
1 | 生料庫收塵器Dust filter of raw material silo |
|
| 工藝定 (According to workmanship.) |
2 | 庫底充氣管道Bottom silo and aerating pipeline |
|
| 工藝定 (According to workmanship.) |
3 | 羅茨風機Roots fan |
| 1臺(1set) | 工藝定 (According to workmanship.) |
4 | 庫內充氣箱Aerating case in silo |
| 1套(1set) | 工藝定 (According to workmanship.) |
5 | 充氣螺旋閘門Aerating screw gate | B500 | 6套(6sets) |
|
6 | 氣動開關閥Pneumatic on-off valve | B500 | 6套(6sets) |
|
7 | 斜槽 Air slide | B500 | 6套(6sets) |
|
8 | 均化倉收塵器Dust filter of homogenized silo |
| 1臺(1set) | 工藝定 (According to workmanship.) |
9 | 均化倉Homogenized silo | Φ4000mm | 1臺(1set) |
|
10 | 充氣螺旋閘門Aerating screw gate | B300 | 2臺(2sets) |
|
11 | 氣動開關閥Pneumatic on-off valve | B300 | 2臺(2sets) |
|
12 | 電動流量閥Motorized flow valve | B300 |
|
|
13 | 卸料溜子Discharge funnel |
|
|
|

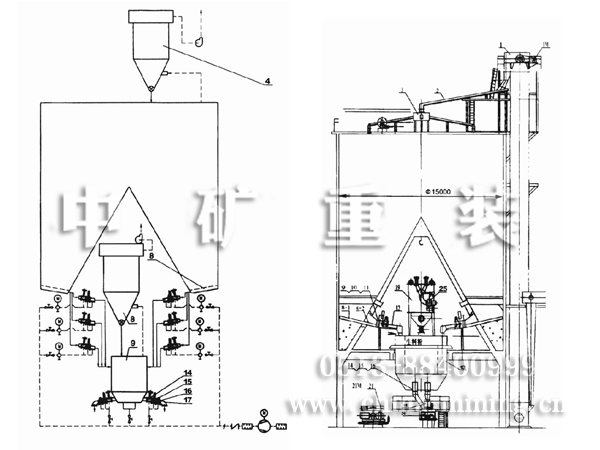
三、IBAU庫示意圖
序號 (NO.) | 名稱型號Name & specification | 單位 Unit | 數量 (Qty.) |
1 | NBS斗式提升機NBS bucket elevator | 臺 Set | 1 |
2 | XZ400空氣輸送斜槽傾角6° XZ400 air slide Slope 6° | 臺 Set | 1 |
3 | Φ1250mm溢流式生料分配器傾角6° 01250mm Spillage raw material distributor Slope 6° | 臺 Set | 1 |
4 | FCM32~4氣箱脈沖袋收塵器FCM32-4 air case and pulse bag filter | 臺 Set | 1 |
5 | 風機:9-26 No.8D Fan:9-26 N0.8D | 臺 Set | 1 |
6 | 電動推桿蝶閥DN=550 Motorized handspike and butterfly valve DN=550 | 臺 Set | 1 |
7 | 庫頂收塵器管路配用蝶閥Butterfly valve for pipeline of top silo dust filter |
|
|
8 | 庫內開式充氣斜槽及管件Open air slide in silo and pipelines | 臺 Set | 1 |
9 | 螺旋閘板閥:B200 Screw gate:B200 | 臺 Set | 6 |
10 | 氣動開關閥:B200 Pneumatic on-off valve:B200 | 臺 Set | 6 |
11 | 電動流量調節閥:B200 Motorized flow adjustable valve:B200 | 臺 Set | 6 |
12 | XZ200x 1300mm空氣輸送斜槽傾角6° XZ200 x 1300mm air slide Slope 6° | 臺 Set | 6 |
13 | 套筒式生料計量喂料倉Feeding silo of sleeve and raw material measuring | 臺 Set | 1 |














