電動、電液動推桿平板閘閥(DTLV-0.1/DLVds-0.1)
丁寶勤 13906276368(技術)
電話:0513-88400999 傳真:0513-88400998 郵箱:jszk@vip.163.com

DTLV-0.1電動推桿平板閘閥
一、用途
DTLV-0.1電動推桿平板閘閥,廣泛適用于建材、冶金、礦山等行業,是控制粉塵物料流量的理想設備。
二、工作原理
DTLV-0.1電動推桿平板閘閥主要由框架、閘板、DDT電動推桿等零件組成。工作時,連桿受電推力作用帶動閘板作水平方向的往復運動,達到閥門的啟閉目的。

三、主要性能參數
公稱壓力(MPa) | 0.1~0.6 |
工作溫度(℃) | ≤150 |
送料能力(T/h) | 粉塵物料 |
四、型號編制說明

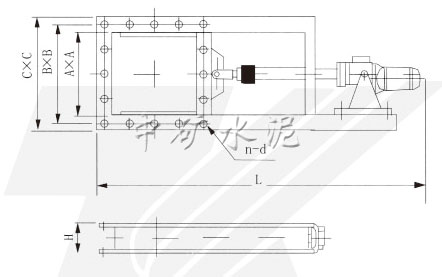
五、主要外形及連接尺寸


DLVds-0.1電動單、雙向平板閘閥
一、用途
江蘇中礦DLVds-0.1電動單、雙向平板閘閥廣泛適用于建材、冶金、礦山等行業粉塵物料流量控制的管道上。是控制粉塵物料流量的理想設備。
二、特點
結構簡單,重量輕,操作靈活,裝拆方便。DLVds-0.1電動單、雙向平板閘閥采用碳素鋼制造,具有強度高,性能好,使用壽命長等優點。且絲桿及螺母采用了軟防護罩結構,不受外界粉塵影響。
三、工作原理
江蘇中礦DLVds-0.1電動單、雙向平板閘閥主要由框架、絲桿螺母、手輪、鏈輪、閘板組成,手輪(鏈輪)轉動,絲桿帶著絲桿螺母和閘板作水平方向的往復運動,達到閥門的啟閉目的。
四、型號編制說明

五、主要性能參數
公稱壓力(MPa) | 0.6 |
適用溫度(℃) | ≤150 |
適用介質 | 粉塵物料 |
六、外形及連接尺寸

下一頁:QTLV-0.1氣動推桿平板閘閥


.jpg)












